Custom Home
Featured
Featured
Custom Home
360° Virtual Tour
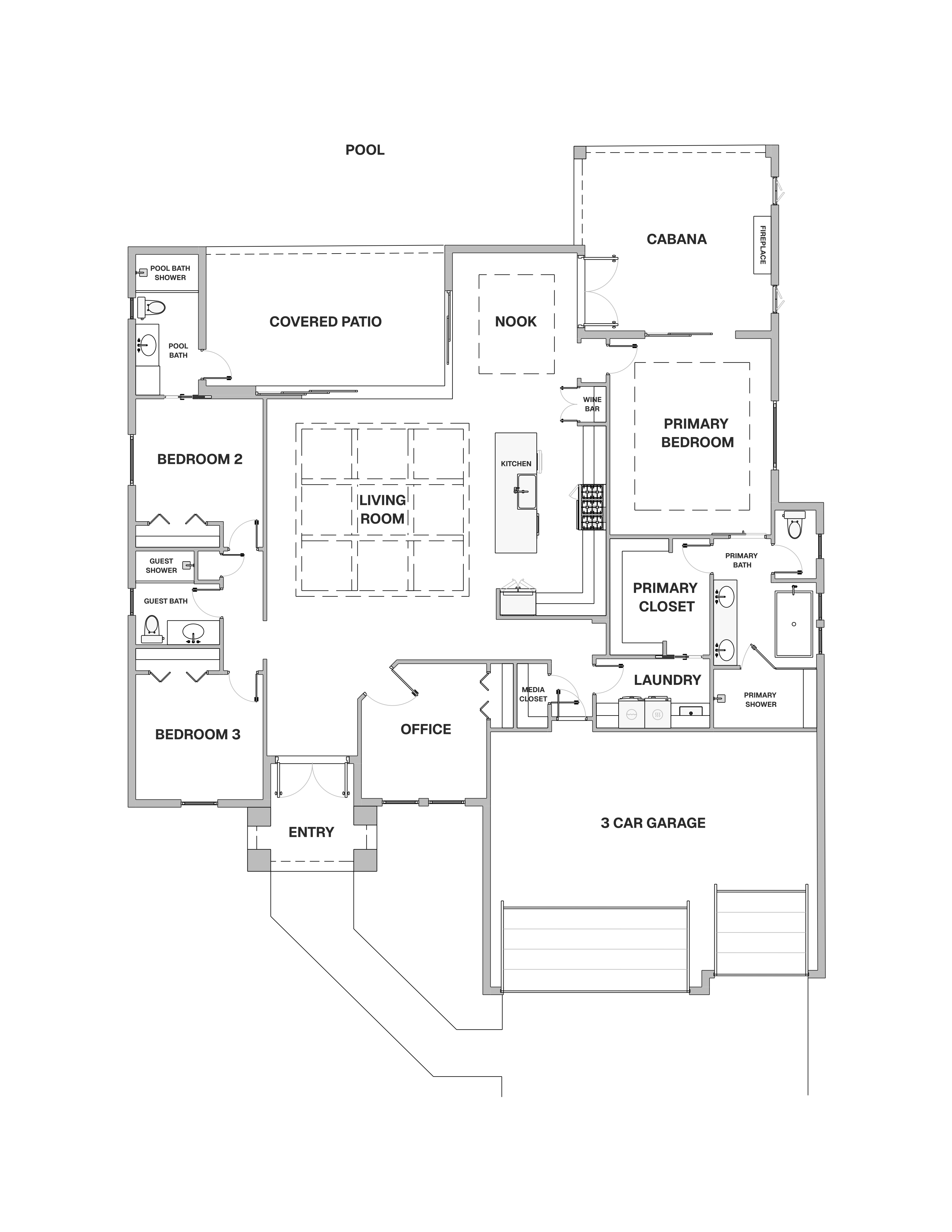
Floor Plans
Ramos Builders Custom Home
Step into a new world of possibilities with Ramos Builders. We don’t just build houses, we bring your unique vision to life through thoughtful design, the highest quality materials, and expert craftsmanship. From first sketch to final walkthrough, our team listens closely and collaborates with you to create a personalized home that perfectly matches your style and needs. Let us transform your ideas into a stunning custom space that’s built for your life, your way.
Rooms:
3 + Den
3 + Den
Baths:
3
3
Size:
2246
2246





























